Land.In.Sicht
Büro Dr. Paula
Zurück

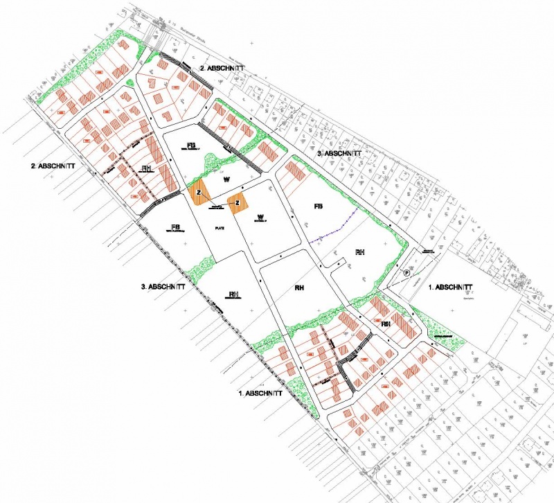
BEBAUUNGSSTUDIE "OBERES FELD"

Das Grundprinzip des Bebauungskonzeptes "Oberes Feld", liegt in einer zweiseitigen Verkehrserschließung aus nördlicher und südöstlicher Richtung. Der städtebauliche Grundgedanke basiert auf der Schaffung eines zentralen Platzes in der Mitte des zu bebauenden Grundstückes. Verdichtete, mehrgeschossige Wohnbebauung bzw. verdichtete Flachbauten (Bauklasse I - III) sollen den rund 4.000 m² großen Platz umgeben. Für zentrale Einrichtungen (Nahversorger, Dienstleistungsbetriebe,...) sind zwei Bereiche im direkten Anschluss an den zentralen Platz vorgesehen. Neben dem generellen Erschließungs- und Bebauungskonzept wurden außerdem Gestaltungsvorschläge für Teile des Gesamtareals angefertigt.